Category: 2018 Indigo Lab
Denim Research & Design Studio | Shell Apparels Pvt Ltd, Bangalore
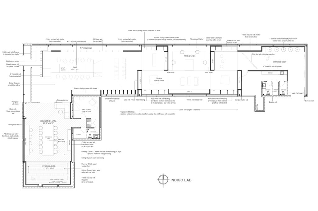
The interiors of Indigo Lab are an outcome of the study and reinterpretation of traditional building materials and techniques. We hope this customised palette creates a neutral setting in which the classic denim is reinterpreted, rethought, and innovated.






















